Prodej rekonstruovaného bytu v Petrově nad Desnou.

Zpět na seznam

Základní údaje

Evidenční číslo:
10039
Typ nemovitosti:
Byt
Typ zakázky:
Prodej
Dispozice:
2+kk
Stav zakázky:
Aktivní
Lokalita:
Petrov nad Desnou
Cena:
4 250 000 Kč
Cena včetně provize:
Ano

Makléř

Ing. Radek  Svítil
Jméno:
Ing. Radek Svítil
Telefon:
+420 583212332
Mobil:
+420 608740444

Popis

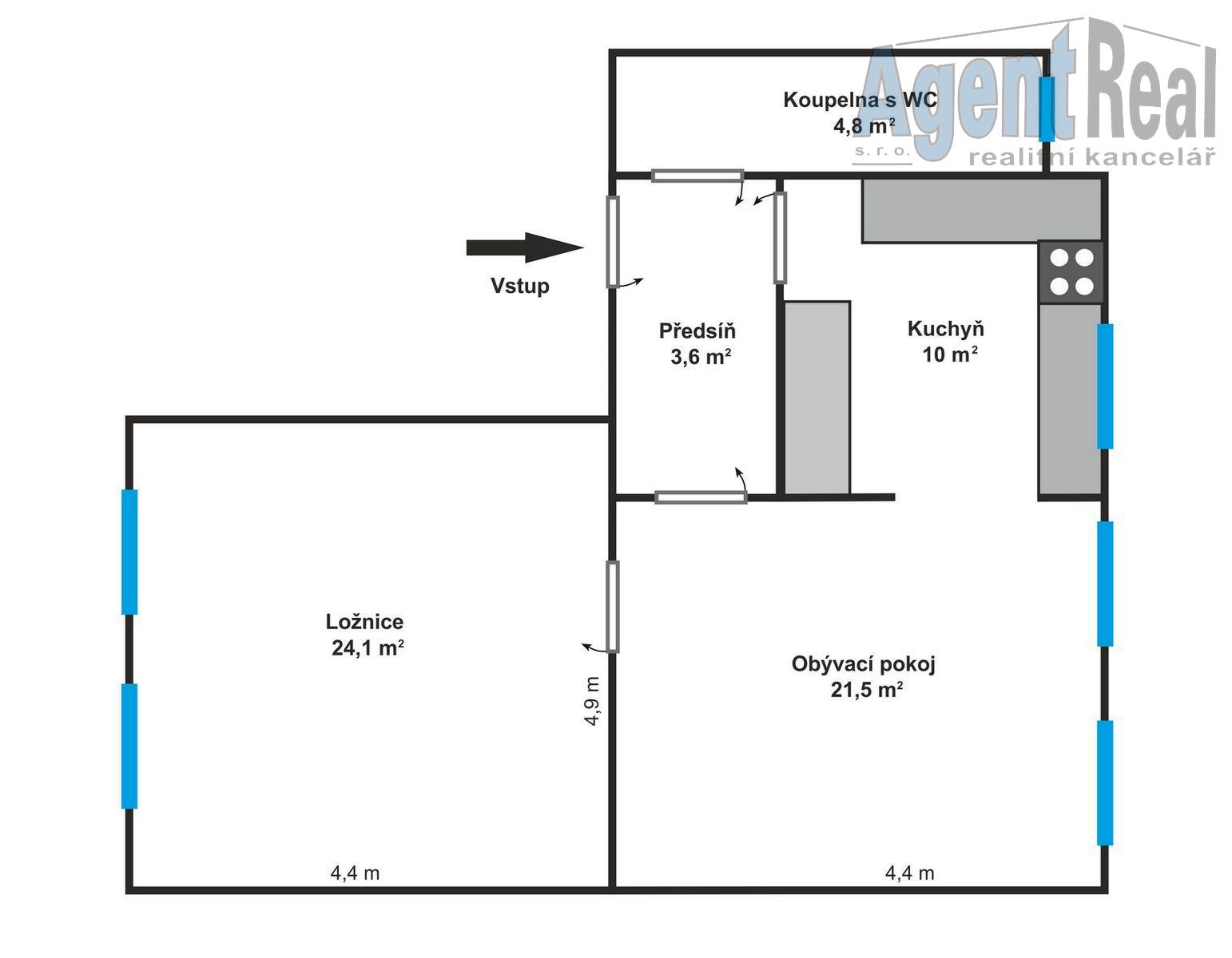
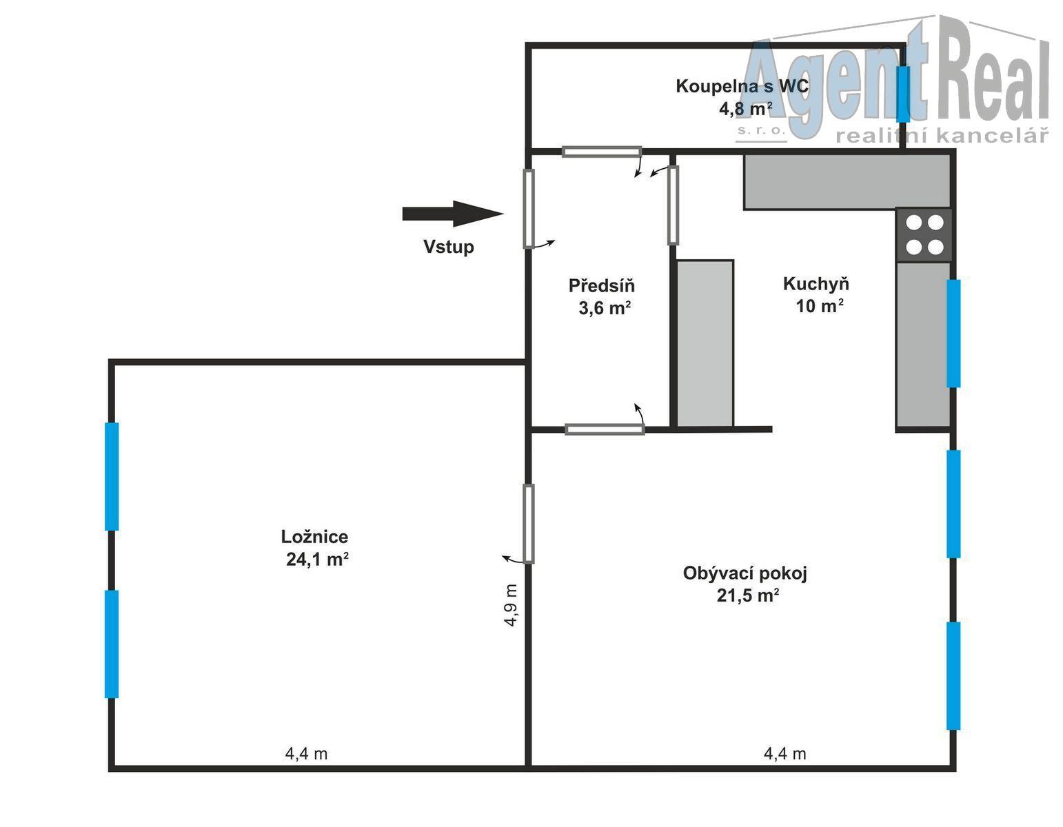
Nabízíme prodej bytu 2+kk v Petrově nad Desnou. Byt je kompletně vybavený nábytkem a spotřebiči, nachází se v podhůří Jeseníků a může sloužit pro rekreační účely či ke krátkodobému pronájmu. Byt se nachází v 1. patře zděného domu, prošel v roce 2021 kompletní a zdařilou rekonstrukcí. Byla provedena nová elektroinstalace, rozvody vody a topení, nové omítky, podlahy, stropní podhledy, okna s trojsklem. V bytě se nachází předsíň (3.3 m2), obývací pokoj (22.5 m2), ložnice (24.8 m2), kuchyně (9.4 m2) a koupelna s WC (4.9 m2). K bytu náleží sklep (13.5 m2) a půdní kóje (7.5 m2) a dvě kůlny (12.2 m2) na dvoře. Dům je udržovaný, má novou střešní krytinu, zateplenou fasádu a zateplené půdní prostory. Byt má vlastní vytápění plynovým kotlem (vč. ohřevu TUV) s možností dálkového ovládání přes mobilní aplikaci. V pronájmu od obce je zahrádka za domem. Parkování je na obecním pozemku u domu. Na pozemku patřící k budově se nachází studna, která zásobuje pitnou vodou celý dvojdům, který je napojen na obecní kanalizaci, Paušální měsíční náklady pro 2 osoby činí 4106 Kč, z toho fond oprav 1.333 Kč, splátka revitalizace 2125 Kč, pojištění 153 Kč a spol. elektřina 77 Kč a stočné v paušální částce 209 Kč/osobu a měsíc. Roční spotřeba plynu na vytápění a ohřev TUV činila před zateplením cca 8 MWh/rok, tj cca 27.000 Kč. K bytu se váže povinnost splácet úvěr na revitalizaci, zůstatek k 31.12.2025 činil 406.485 Kč. Cena je vč. provize a právních služeb. Před osobní prohlídkou se prosím podívejte se na 360° virtuální prohlídku na naší domovské stránce AgentReal, kde si nemovitost prohlédnete mnohem lépe než z běžných fotografií či videa.

Rozšiřující údaje

Plocha celková:
98 m2
Užitná plocha:
98 m2
Plocha sklepa:
13 m2
Balkón:
Ne
Lodžie:
Ne
Sklep:
Ne
Terasa:
Ne
Výtah:
Ne
Konstrukce budovy:
Cihla
Druh smlouvy:
Výhradní
Patro:
1. patro
Celkem pater:
1
Počet nadzemních podlaží:
2
Stav nemovitosti:
Dobrý
Typ vlastnictví:
Osobní
Dispozice:
2+kk
Energetická náročnost budovy:
E - Nehospodárná
Energetická náročnost podle vyhlášky:
264/2020 Sb

Další fotografie

photo_1002
photo_1003
photo_1004
photo_1005
photo_1006
photo_1007
photo_1008
photo_1009
photo_1010
photo_1011